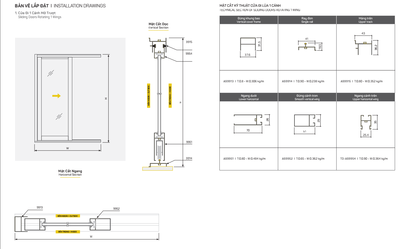
Cửa đi lùa 1 cánh là một loại cửa mở ra hoặc đóng lại bằng cách lùa cánh cửa về phía trong hoặc ngoài.

1. **Tiết kiệm không gian:** Cửa đi lùa 1 cánh không cần không gian lớn để mở cửa ra hoặc đóng cửa lại, điều này phù hợp cho các không gian có diện tích hạn chế hoặc cần tối ưu hóa không gian sử dụng.
2. **Thiết kế đơn giản:** Cửa đi lùa 1 cánh thường có thiết kế đơn giản, dễ dàng sử dụng và bảo trì. Điều này làm cho chúng phù hợp với nhiều loại kiến trúc và phong cách nội thất.
3. **Khả năng kiểm soát ánh sáng và gió:** Bạn có thể dễ dàng kiểm soát lượng ánh sáng và gió đi vào bằng cách mở cửa một phần hoặc hoàn toàn. Điều này giúp duy trì sự thoải mái trong nhà và làm tiết kiệm năng lượng.
4. **Khả năng tạo cảm giác mở rộng không gian:** Khi cửa đi lùa 1 cánh được mở, nó có thể tạo ra cảm giác mở rộng không gian, đặc biệt là khi có tầm nhìn ra bên ngoài hoặc khi nó được kết nối với không gian ngoại trời như sân vườn hoặc ban công.
5. **An toàn và bảo mật:** Cửa đi lùa thường có các cơ chế khóa và an toàn để đảm bảo sự an toàn và bảo mật cho ngôi nhà hoặc cơ sở của bạn.
6. **Tùy chỉnh:** Bạn có thể tùy chỉnh cửa đi lùa 1 cánh để phù hợp với màu sắc, chất liệu và thiết kế nội thất của bạn. Điều này cho phép bạn thích nghi với phong cách và yêu cầu cụ thể của bạn.
Nhớ rằng mỗi loại cửa đều có ưu điểm và hạn chế của riêng nó, và sự lựa chọn của bạn phụ thuộc vào nhu cầu và ưu tiên cụ thể của bạn trong việc sử dụng cửa trong ngôi nhà hoặc công trình của bạn.

|
Trắng sứ |
Trắng Ynghua |
Xám sần |
Xám ánh kim |
Xám xingfa |
Trắng xingfa |
Cafe xingfa |
Trắng xingfa |
Xám đá xingfa |
Hàng thô |
|
Vân gỗ lợt |
Vân gỗ đậm |
Vân gỗ sần |
|
Trắng mờ |
Trắng bóng |
Vàng bóng |
Vàng mờ |
|
Ghi bóng |
Nâu bóng |
Nâu mờ |




