VÁCH NGĂN VĂN PHÒNG
Vách ngăn văn phòng là sản phẩm khá quen thuộc ở các văn phòng hiện đại ngày nay. Vách ngăn với nhiều công dụng khác nhau như:
♦ Dùng để chia phòng thành các không gian khác nhau, đảm bảo độ tách biệt, kín đáo và độc lập cần thiết. Vách ngăn phòng thường là kiểu vách khít tường cố định hoặc di chuyển ( vách ngăn di động)
♦ Dùng để phân chia không gian làm việc thành nhiều ô, khoang, vùng khác nhau nhằm tạo môi trường làm việc độc lập giữa các nhân viên. Vách ngăn này thường là vách lửng được làm từ nhiều chất liệu và bề dày khác nhau.
Hiện nay trên thị trường có đa dạng các mẫu vách ngăn với nhiều chất liệu khác nhau nhưng vách ngăn văn phòng, được làm từ khung nhôm định hình rất được ưa chuộng bởi nhiều tiện ích vượt trội.
Vách Ngăn Cố Định & Vách Ngăn Di Động
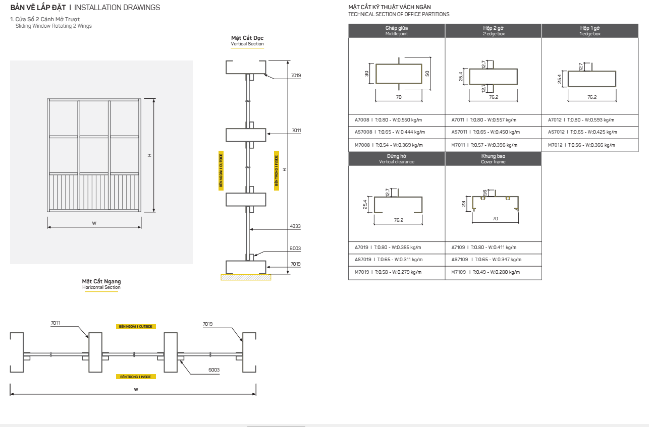
Vách ngăn cố định có cấu tạo từ khung nhôm thường ánh nhôm hoặc nhôm sơn tĩnh điện với nhiều màu khác nhau. Với kết cấu gọn nhẹ, dễ dàng tháo lắp, di chuyển. Hình thức, màu sắc đa dạng và sử dụng thuận tiện, tận dụng được không gian văn phòng, tiết kiệm chi phí và tối ưu công năng sử dụng.
Vách ngăn di động có cơ cấu dịch chuyển chắc chắn, linh động. Hệ thống ray treo, vách bằng nhôm định hình chịu lực cao ray liên kết với trần bê tông hoặc xà gồ nhờ hệ thống các ray treo và bulong sắt. Bi treo vách di động bằng nhựa được bọc inox chống vỡ. Các tấm vách di động được kẹp bởi các kẹp nhôm chuyên dụng, chúng thiết kế riêng cho hệ thống vách ngăn di động kính.

Những Ưu Điểm Nổi Bật của Vách Ngăn Cố Định Và Vách Ngăn Di Động
1. Dễ dàng tháo lắp
- Vì có kết cấu khá gọn nhẹ, ít có phụ kiện đi kèm nên về cơ bản, vách ngăn di động rất dễ lắp đặt hay tháo bỏ, tháo để di chuyển.
2. Giảm tiếng ồn và tiết kiệm diện tích tối đa
- Vách ngăn nhôm kính có khả năng cách âm rất tốt. Với hệ thống ray trượt việc sử dụng sẽ trở nên nhẹ nhàng, ít gây ra tiếng động. Khoảng không gian trống sẽ được chia thành nhiều phần nhỏ khác nhau. Vách ngăn di động có thể được thiết kế theo dạng cánh lớn có thể gấp gọn nhờ vậy mà diện tích được tiết kiệm tối đa.
3. Đa dạng về mẫu mã và sản phẩm
- Vách ngăn di động được thiết kế rất phong phú, nhiều sản phẩm khác nhau bạn sẽ có nhiều sự lựa chọn phù hợp với công trình của mình. Không chỉ đa dạng về chất liệu mà vách ngăn di động còn phong phú về màu sắc.
Nhà máy nhôm Xingfa TDA là một trong những đơn vị ứng dụng các công nghệ hiện đại vào sản xuất. Với đội ngũ kỹ thuật có trình độ chuyên môn cao, không ngừng nghiên cứu sáng tạo mang đến nhiều sản phẩm với mẫu mã thiết kế phong phú. Đáp ứng nhu cầu ngày càng cao của khách hàng.